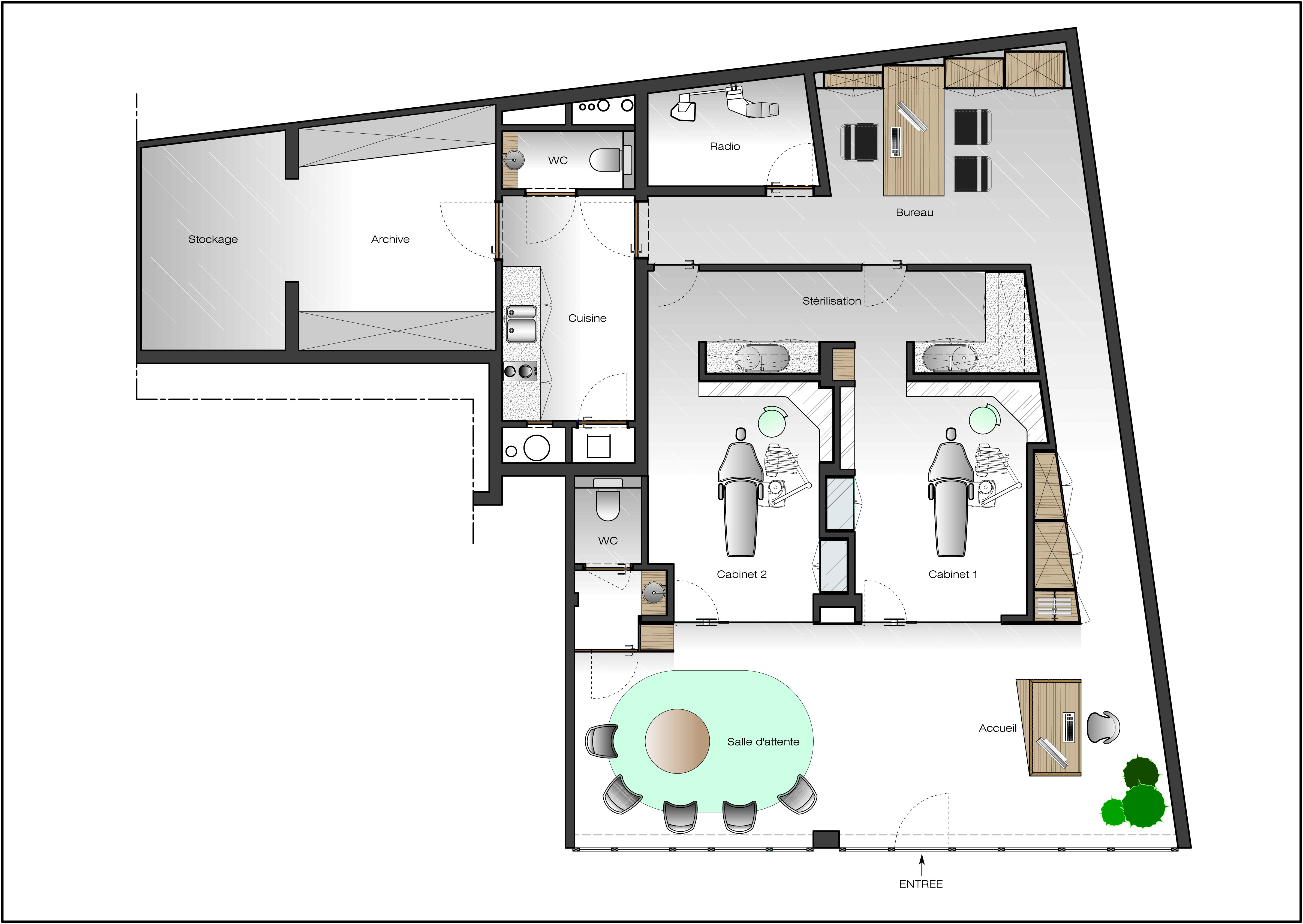
Projets professionnels

Projet d’aménagement d’un cabinet d’orthodontie.
Braine l’Alleud
Superficie 130m²

Christophe Ternest | architecte d'intérieur Christophe Ternest | architecte d'intérieur Christophe Ternest | architecte d'intérieur Christophe Ternest | architecte d'intérieur Christophe Ternest | architecte d'intérieur Christophe Ternest | architecte d'intérieur Christophe Ternest | architecte d'intérieur Christophe Ternest | architecte d'intérieur Christophe Ternest | architecte d'intérieur Christophe Ternest | architecte d'intérieur Christophe Ternest | architecte d'intérieur Christophe Ternest | architecte d'intérieur Christophe Ternest | architecte d'intérieur Christophe Ternest | architecte d'intérieur
Toc toc toc